我们在使用CAD快速看图的时候,想要改变标注颜色以及大小,各位伙伴们知道怎么处理吗?下文这篇教程就为各位带来了CAD快速看图改变标注颜色以及大小的操作步骤。
CAD快速看图改变标注颜色以及大小的操作步骤
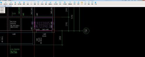
CAD快速看图默认的标注颜色是橙色,如果不喜欢,可以点击工具栏的“标注设置”按钮来设置颜色。从这里设置后,本张图纸以后做的标注都是改变后的颜色。
我们点击“标注设置”按钮,选择一个喜欢的颜色,这里选择黄色,点保存即可。文字大小默认自动,也可以活动更改。
这时改变后,测量功能中所有的标注、文字标注、任意线标注都会变成更改后的颜色--黄色。
对于已经做好的标注,可以点击VIP按钮中的“修改单个标注属性”来修改颜色和文字大小。或者在图纸上右键,出现右键菜单,选择“修改单个标注属性”。
5.按照鼠标旁边的提示,左键选择一个已经有的标注。
弹出对话框,可以选择标注颜色和大小,还有比例。这里选择紫色,文字高度变大些。
关闭对话框,就可以看到,标注的颜色和文字大小已经改变啦。
你们看完了上文所述的CAD快速看图改变标注颜色以及大小的详细操作步骤,自己也赶紧去试试吧!
体育竞技
310.89MB
88.6MB
47.8MB
游戏辅助 | 4.5GB
2024-04-24
动作格斗 | 20GB
2024-04-23
角色扮演 | 3.2GB
2024-04-22
角色扮演 | 500MB
休闲益智 | 30.17MB
2024-04-18
生活服务 | 144.35MB
学习教育 | 24.26MB
2023-11-08
系统工具 | 6.78MB
体育竞技 | 88.6MB
体育竞技 | 47.8MB
体育竞技 | 310.89MB
CAD快速看图改变标注颜色以及大小的操作步骤
我们在使用CAD快速看图的时候,想要改变标注颜色以及大小,各位伙伴们知道怎么处理吗?下文这篇教程就为各位带来了CAD快速看图改变标注颜色以及大小的操作步骤。
CAD快速看图改变标注颜色以及大小的操作步骤
CAD快速看图默认的标注颜色是橙色,如果不喜欢,可以点击工具栏的“标注设置”按钮来设置颜色。从这里设置后,本张图纸以后做的标注都是改变后的颜色。
我们点击“标注设置”按钮,选择一个喜欢的颜色,这里选择黄色,点保存即可。文字大小默认自动,也可以活动更改。
这时改变后,测量功能中所有的标注、文字标注、任意线标注都会变成更改后的颜色--黄色。
对于已经做好的标注,可以点击VIP按钮中的“修改单个标注属性”来修改颜色和文字大小。或者在图纸上右键,出现右键菜单,选择“修改单个标注属性”。
5.按照鼠标旁边的提示,左键选择一个已经有的标注。
弹出对话框,可以选择标注颜色和大小,还有比例。这里选择紫色,文字高度变大些。
关闭对话框,就可以看到,标注的颜色和文字大小已经改变啦。
你们看完了上文所述的CAD快速看图改变标注颜色以及大小的详细操作步骤,自己也赶紧去试试吧!
体育竞技
310.89MB
体育竞技
88.6MB
体育竞技
47.8MB
游戏辅助 | 4.5GB
2024-04-24
动作格斗 | 20GB
2024-04-23
角色扮演 | 3.2GB
2024-04-22
角色扮演 | 500MB
2024-04-22
休闲益智 | 30.17MB
2024-04-18
生活服务 | 144.35MB
2024-04-18
生活服务 | 144.35MB
2024-04-18
生活服务 | 144.35MB
2024-04-18
学习教育 | 24.26MB
2023-11-08
系统工具 | 6.78MB
2023-11-08
体育竞技 | 88.6MB
体育竞技 | 47.8MB
体育竞技 | 310.89MB